Chalet De L\'ours - Chamonix All Year
Alleen voorbeeld – bekijk alle hotelfoto's
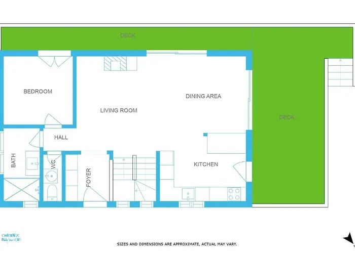
Zie alle 34 foto's
Hotel op de kaart tonen
Chalet De L\'ours - Chamonix All Year
Deze 3-slaapkamer Chalet De L'ours - Chamonix All Year biedt een kans om tot rust te komen naast Lac des Gaillands, dat binnen 18 minuten lopen ligt en heeft uitzicht over de berg. Dit chalet biedt Wi-Fi en bevindt zich binnen 3 km van de Flégère-kabelwagen.
Deze 3-badkamer villa bevindt zich in een rustige buurt op rijafstand van 5 minuten van gezinsvriendelijke attracties zoals de skeliften van Les Planards. Gasten kunnen een bezoek brengen aan de Mont Blanc Tunnel, op slechts 1 km afstand van Chalet De L'ours - Chamonix All Year, of een kijkje nemen bij het Alpine Museum van Chamonix, op 2 km verderop. Voor sportliefhebbers is deze woning een ideaal startpunt om de sportscene van Chamonix te ontdekken, met Centre Sportif Richard-Bozon op 10 minuten rijafstand.
Tot de badkamerfaciliteiten van Chalet De L'ours - Chamonix All Year behoren ook een douche. Er zijn een droger en handdoeken voor het comfort van de gasten.
De keuken van deze accommodatie is uitgerust met een waterkoker, een koelkast en een oven, en is voorzien van een eetgedeelte. Gasten kunnen genieten van een diner in Buvette des Mottets, gelegen op slechts 14 rijminuten verderop. Het treinstation Montenvers - Mer de Glace ligt ervandaan en de dichtstbijzijnde bushalte is Auberge de Jeunesse in de onmiddellijke nabijheid van deze villa. Hoogtepunten in Chalet De L'ours - Chamonix All Year zijn niet alleen een gemeenschappelijke salon en een grote tuin, maar ook sneeuwskiën voor sportliefhebbers.
Voorzieningen
Hoofdvoorzieningen
- Gratis Wi-Fi
- Kindvriendelijk
- Huisdieren
Faciliteiten
- Gratis WiFi in openbare ruimtes
- Parkeerplaats
- Huisdieren toegestaan
- Skiopslagkamer
- Elektrische waterkoker
- Droger
- Keukengerei
- Skischool
- Ski-uitrusting verhuur
- Skipas automaat
- Eettafel
- Wasmachine
- Flat-screen TV
- Ledikanten/ Babybedden
- Vloerbedekking
Beleid
- Extra bedden
- Geen ledikanten zijn beschikbaar in een kamer.
Kaart
Locale bezienswaardigheiden
Bezienswaardigheden
- Ski Lift Les Praz - La Flegere (3,8 km)
- Ski Lift Chamonix - Planpraz (1,3 km)
Luchthavens
- Luchthaven Annecy-Meythet (100 km)
Treinstations
- Treinstation Montenvers - Mer de Glace (4,6 km)
Beoordelingen
100% Geverifieerde Beoordelingen
Veelgestelde vragen
- ❓Biedt Chalet De L'ours - Chamonix All Year parkeergelegenheid aan?Ja, Chalet De L'ours - Chamonix All Year biedt gratis privéparkeerplaatsen ter plekke.
- ❓Wat is de prijs van een overnachting in Chalet De L'ours - Chamonix All Year?Bij Chalet De L'ours - Chamonix All Year beginnen de prijzen bij €1484 per nacht.
- ❓Welke vervoerstations liggen het dichtst bij Chalet De L'ours - Chamonix All Year?Het dichtstbijzijnde busstation bij Chalet De L'ours - Chamonix All Year is Auberge de Jeunesse.
- ❓Heeft dit chalet een ruimte om te koken?Absoluut, in dit chalet is een keuken beschikbaar.
- ❓Is het mogelijk om mijn huisdier mee te nemen naar deze villa?Ja, huisdieren zijn welkom in deze villa.
- ❓Zijn er skifaciliteiten beschikbaar in Chalet De L'ours - Chamonix All Year?Skiliefhebbers kunnen een skischool, een skiopslag en skiverhuur vinden bij Chalet De L'ours - Chamonix All Year.